,推出的大平层138-204㎡!本次推出1栋1/2/3单元,共420套房源,面积有138-PG电子 PG平台PG电子官方网站 PG电子网址139㎡的4房2厅2卫,202-204㎡的4房2厅3卫户型,作为光明顶豪楼盘,金硕臻府做到了一梯一户,专梯入户的奢阔大空间,3.15米层高,车位比1比1.6,其中光明仅有的204平大户型基本是千万起步门槛,预计在2026年10月份交房,138平户型带精装交房,204平户型带简装交房。
如需了解更多关于我们楼盘最新消息、剩余房源、优惠活动、房价走势等情况,感兴趣的朋友欢迎来电预约前往参观,享受一对一专属VIP看房服务,一定比中介和自媒体更便宜享受开发商内部额外最低优惠折扣和大额现金购房补贴。

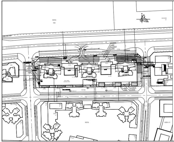
金硕臻府,由满京华集团开发,位于光明区光明中心区光辉大道与狮山三街交汇处,项目所在区域是光明规划最宜居,居住小区板块最大的片区,北侧靠近科学公园,东侧及南侧是深圳小学光明学校狮山校区及初中校区,距离最近的6号地铁线米。

满京华金硕,前身为光明狮山利益统筹项目,由满京华集团全盘操刀,涵盖有10块用地,总占地面积约10.9万㎡,总建筑面积约32.38万㎡,其中住宅用地有7块,返还用地1块,公共绿化用地2块,住宅用地有:满京华金硕和府满京华金硕瑞府满京华金硕臻府满京华金硕华府满京华金硕悦府满京华金硕嘉府

满京华金硕臻府,总占地面积约1.4万㎡,总建筑面积12.22万㎡,计容建筑面积约8.97万㎡,容积率5.38,绿化率40.01%,共由3栋总高33-41层的住宅组成,其中1栋1单元住宅44F,1栋2单元住宅40F,1栋3单元住宅36F。
总规划420户,全部都是商品房住宅,3梯4户设计,地下3层,总规划661个车位,车位占比约1:1.57。


温馨提示:感兴趣的朋友欢迎来电预约前往参观,享受一对一专属VIP看房服务,一定比中介和自媒体更便宜享受开发商内部额外最低优惠折扣和大额现金购房补贴。
本项目推广名为“满京华金硕臻府,官方电线 本资料为要约邀请,不作为要约或承诺。以上所发布的关于楼盘相关图文信息仅供您买房前参考,以上所有关于本楼盘的图文资料及说明请以最终以项目批文及双方在楼盘营销中心现场签署的买卖最终合同为准;
特别声明:以上内容(如有图片或视频亦包括在内)为自媒体平台“网易号”用户上传并发布,本平台仅提供信息存储服务。
“16岁少年在未管所遭殴打致死”案二审开庭,上诉两人庭审时辩称“未殴打要害部位”
女子新房装玫红色入户门贴花壁纸,网友直呼“全网独一无二”,当事人:装修花费近100万元,老公每次来都像游客一样
CES 2026 TCL实业携全球首创SQD-Mini LED显示技术亮相
RTX 60系列或推迟至2027年下半年 黄仁勋称“神经渲染”才是GPU未来方向
选择困难症救星:Smartlet表带让你Apple Watch、传统手表一起戴