关于佛山曾经的“最高烂尾楼”的威达大厦(现更名为置地大厦),楼市君最近获悉:该项目将于

根据资料显示,项目总高171米,建筑面积约7.58万平,涵盖4.42万平办公空间和1.05万平商业配套,建筑采用地下3层+地上38层结构, 配备9台电梯。
整体建筑密度29.64%,绿地率20%。地下室面积约1.67万平,另含119平社区配套设施,旨在打造集商务办公与商业服务于一体的现代化地标。

从户型与空间设计来看,项目商务空间面积区间覆盖96-1440平,使用率约71%。具体细分四大主力户型:
悦享(约96平PG电子 PG平台)、荟享(约122-158平)、尚享(约249平)、尊享(约500-1440平以上)。

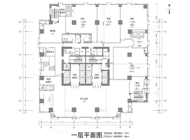
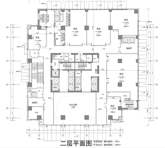
从平面图来看,大厦一二层以商业功能为主,一层同步设置物业办公区与消控室,未规划办公空间。


据了解,首层大堂挑高约10.2米,采用一二层挑空设计,从公区效果图来看,大堂配备智能闸机,整体开阔通透,风格简约现代。

15-36层为标准办公层,每层规划8间办公空间,具体户型为96/123/250平。

配套设施方面,项目规划682个停车位, 从停车位效果图来看, 停车大堂设计宽敞敞亮。

楼宇内部设有室内PG电子游戏 PG电子官网瑜伽室、SPA 水疗中心、无人健身中心及员工食堂,可以满足健身、休闲、餐饮等日常需求。


同时为企业提供小型、中型、多功能型三种规格会议室,顶层还设置超1000平多功能私董会所,为企业客户提供接待空间。
威达大厦的故事始于2012年,当时佛山市达磐恒房地产开发有限公司竞得季华路核心地块,规划打造集商业、办公于一体的超高层综合体。
2016年,项目成功实现171米主体结构封顶,有望成为佛山城市天际线的新景观。

这一停就是七年多,这座已完成封顶的摩天大楼就此成了佛山核心商务带上的一道伤疤。
转机出现在2024年11月,佛山东晖企业管理有限公司通过破产重整程序,成功竞得项目开发权益。

根据祖庙微新闻公布,今年6月,大厦正式启动复工,并由威达大厦正式更名为置地大厦。

不仅如此,根据工作人员的介绍:项目十月将同步开放销售中心,届时将有展示面供大家参观。不过项目目前暂时还在装修,最终价格暂未确定。

围挡上张贴有周边环境改造公示、大厦信息公示牌,建设项目申请调整批前公示、施工现场总平面图等一系列文件。
楼市君还注意到,现场有升降机持续运输施工材料,推测建筑内部正在同步推进装修作业。

一圈逛下来,楼市君可以清楚的感受到“烂尾楼”的旧貌正加速褪,取而代之的是一座现代化满满的地标建筑。


置地大厦位于佛山市禅城区季华路与朝安路交汇处,紧邻地铁3号线季华六路站,周边配套完善,地理位置优越。

2025年,该区域将进入重点项目密集兑现期:佛山绿地中心、九鼎金融中心、万科金融中心等多栋高端写字楼陆续投入使用;

除了将建成新的办公楼外,还将带来华润万象天地这一大型商业体,丰富周边的商业业态,带来更高端的商圈供应。

而且,无独有PG电子游戏 PG电子官网偶,季华路上迎来重生的不止置地大厦,停工近5年的莲塘翡翠湾项目也正计划重启装修,目前已引入禅城首个温德姆花园酒店。

值得一提的是,据楼市君此前实探了解到,季华路整体租金水平不错,价格梯度也十分丰富:
既有每月25元/平的亲民档位,也有百元以上每平每月的高端选择,而主流租金则集中在50-60元/平/月。

这种差异化的租金体系,为不同规模、不同发展阶段的企业提供了多元入驻可能。
而随着一批批新老项目完成焕新活化,不仅能进一步丰富企业的选址选择、吸引更多企业入驻,同时还将持续刷新城市视觉形象,推动季华路的区域商务活力实现进一步跃升。
特别声明:以上内容(如有图片或视频亦包括在内)为自媒体平台“网易号”用户上传并发布,本平台仅提供信息存储服务。
陈震出事故闪灵系4个多月前提的二手车,这是他的第四台劳斯莱斯,他曾称希望能定制一台属于自己的劳斯莱斯
广州的廖一帆爸爸火了,因为他揭开了家委会的线亿买航母送给祖国后宣布破产的山东商人,如今怎样
1-0!2-1!哈兰德7场9球 大马丁4连胜!英超最新积分榜:1-5差3分
华硕ProArt 创16 2025新推5090版本:AI时代创作者的高能伴侣
苹果 M5 iPad Pro 跑分曝光:单核较 M4 提高 12%、多核提高 15%